ROSI
Planning easy made

Sketch your idea

Do you have an idea of what your ideal acoustic booth should look like, but no concrete vision yet? Our planning experts are happy to help and offer practical tips. Simply send us a sketch of the room where your ROSI will be located – and your requirements. It's that easy!

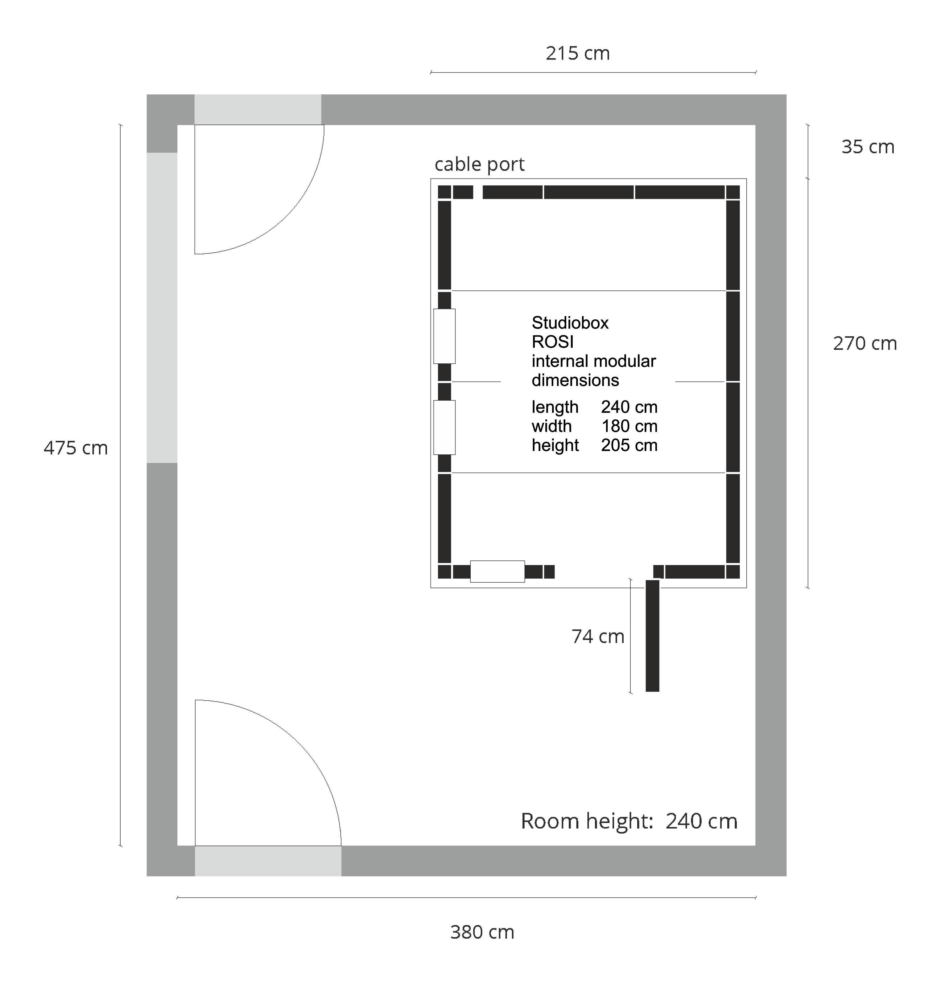
  • Measure your existing room (length x width x height) 

  • Produce a simple floor plan drawing (top view), see example

  • Select booth size

  • Mark the location of your cabin in the room  

  • Specify purpose of application  

  • Send your drawing to info@studiobox.de 

  • Planning aid

  
 

Configure your cabin online

The basic dimensions

Example: ROSI sleeping cabin 180 cm x 180 cm (grid internal dimension)

Here you can see planning examples. Virtually any number of other sizes and layouts are available.

 

Send inquiry

Heights of the soundproof sleeping cabins

The standard interior height of the ROSI sleeping and relaxation cabin is 205 cm. A minimum ceiling height of 240 cm is required for installation.

Oversized and undersized heights are available at any time. Depending on your requirements, we can adjust these heights for you in 5 cm increments.

Correctly identify the need

Which option is best for me? How do I reconcile my wishes with architectural circumstances, acoustical needs etc.?

The answer isn't always obvious. That's where our team comes in. With creative solutions based on more than 30 years of experience. We'll tell you what's possible – and what isn't.

Tel.: +49 (0) 151 / 566 96 164

STUDIOBOX classic: Cabins that might interest you